Let Available Date
Available: Now
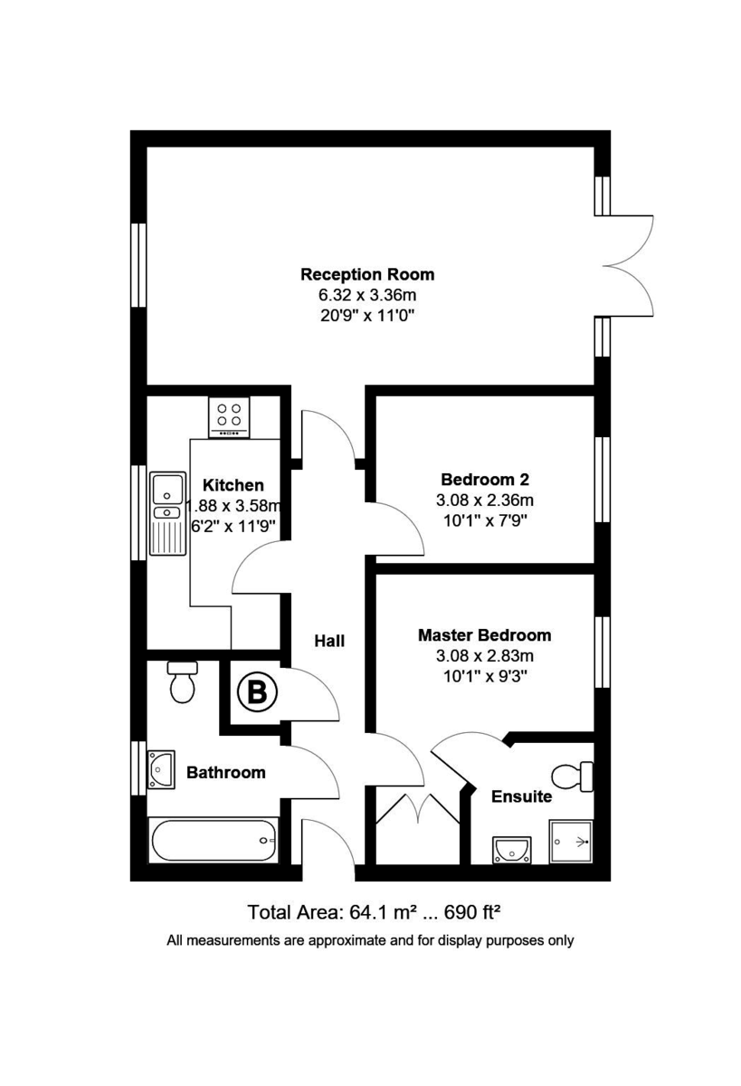
Standout Features
- Two Bed Apartment
- Ground Floor
- Two Bathrooms
- Off Street Parking
- Small Patio
- Popular & Convenient Location
- Council Tax Band - B
- Close To Science Park
Property Description
Located on the ever popular Orchard Park development is this spacious ground floor apartment, which gives quick and easy access to Cambridge Science Park, the City centre and the A14.
Comprising entrance hall, reception room, well equipped modern kitchen, two bedrooms and two well appointed bathrooms (one en-suite).
Additional benefits include double glazed windows throughout, gas fired central heating, off street parking and a small private patio area.
Unfurnished.
Comprising entrance hall, reception room, well equipped modern kitchen, two bedrooms and two well appointed bathrooms (one en-suite).
Additional benefits include double glazed windows throughout, gas fired central heating, off street parking and a small private patio area.
Unfurnished.
Additional Information
Furnish Type:
Unfurnished
Council Tax Band:
B
Security Deposit:
£1,615
Chieftain Way
Struggling to find a property? Get in touch and we'll help you find your ideal property.