Let Available Date
Available: 31/10/2025
Standout Features
- Town Centre Location
- Walking distance To YDH
- Enclosed Garden
- Modern Bathroom and Kitchen
- Double Glazing
- Attractive Conversion
- Permit Parking Available
Property Description
An immaculately presented ground floor garden flat including the freehold of the original terraced house, located in an ideal position for Yeovil Town Centre and Hospital.
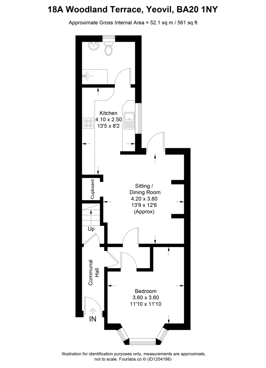
The property comprises of entrance hallway, large lounge with patio door leading to the rear patio area, modern fully fitted kitchen, double bedroom and modern bathroom.
Private rear garden.
COMMUNAL ENTRANCE Shared front door opening into a communal hallway.
Door leading into the ground floor apartment on the right and door to the upper apartment ahead.
Neutral decor and grey tiled flooring.
HALLWAY With doors opening to the sitting/dining room and bedroom.
Neutral decor and wooden-laminate flooring.
SITTING/DINING ROOM 13' 9" x 12' 5" (4.2m x 3.8m) Spacious and light reception room, open-plan to the kitchen at the rear.
Double glazed door opening to the garden.
Neutral decor and wooden-laminate flooring.
Electric storage heater.
Under stairs storage space.
KITCHEN 13' 5" x 8' 2" (4.1m x 2.5m) Modern kitchen with double glazed window to the side and door leading to the bathroom at the rear.
Fitted kitchen with wooden-laminate units and black work top.
Black composite sink and cream wall tiles with a brown mosaic trim.
Fitted electric oven and hob with extractor above.
Integrated fridge and freezer plus space for washing machine.
Wooden laminate flooring.
BATHROOM Modern bathroom with suite of white toilet, pedestal basin and bath with shower above and screen.
Grey floor tiles and light brown wall tiles.
Chrome heated towel rail and extractor fan.
Double glazed window to the rear.
Mirror-fronted cupboard.
BEDROOM 11' 9" x 11' 9" (3.6m x 3.6m) Good sized double bedroom with double glazed bay window to the front.
Neutral decor and wooden laminate flooring.
Electric storage heater.
GARDEN Private fully enclosed patio garden to the rear.
Gate giving access at the end of the garden.
The property comprises of entrance hallway, large lounge with patio door leading to the rear patio area, modern fully fitted kitchen, double bedroom and modern bathroom.
Private rear garden.
COMMUNAL ENTRANCE Shared front door opening into a communal hallway.
Door leading into the ground floor apartment on the right and door to the upper apartment ahead.
Neutral decor and grey tiled flooring.
HALLWAY With doors opening to the sitting/dining room and bedroom.
Neutral decor and wooden-laminate flooring.
SITTING/DINING ROOM 13' 9" x 12' 5" (4.2m x 3.8m) Spacious and light reception room, open-plan to the kitchen at the rear.
Double glazed door opening to the garden.
Neutral decor and wooden-laminate flooring.
Electric storage heater.
Under stairs storage space.
KITCHEN 13' 5" x 8' 2" (4.1m x 2.5m) Modern kitchen with double glazed window to the side and door leading to the bathroom at the rear.
Fitted kitchen with wooden-laminate units and black work top.
Black composite sink and cream wall tiles with a brown mosaic trim.
Fitted electric oven and hob with extractor above.
Integrated fridge and freezer plus space for washing machine.
Wooden laminate flooring.
BATHROOM Modern bathroom with suite of white toilet, pedestal basin and bath with shower above and screen.
Grey floor tiles and light brown wall tiles.
Chrome heated towel rail and extractor fan.
Double glazed window to the rear.
Mirror-fronted cupboard.
BEDROOM 11' 9" x 11' 9" (3.6m x 3.6m) Good sized double bedroom with double glazed bay window to the front.
Neutral decor and wooden laminate flooring.
Electric storage heater.
GARDEN Private fully enclosed patio garden to the rear.
Gate giving access at the end of the garden.
Additional Information
Furnish Type:
Unfurnished
Council Tax Band:
A
Security Deposit:
£825
Woodland Terrace, Yeovil
Struggling to find a property? Get in touch and we'll help you find your ideal property.