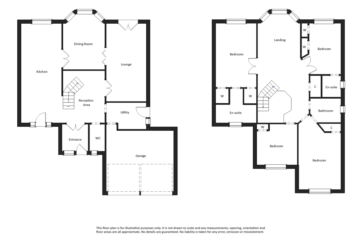
Standout Features
- 4 bedroom
- Large villa
- Spacious family home
- Lounge and dining room
- Feature hallways/stairways with sitting area on first floor
- Bathroom, 2 ensuites and WC
- Ample parking on monoblock drive
- Double garage
- 244 sq metres
- Council Tax Band F
Property Description
Martin & Co are delighted to bring to the market this stunning large four bedroom detached villa located in the very popular Emmock Woods on outskirts of Dundee but ideally situated for ease of access. This spacious family home comprises on the ground floor Entrance Vestibule, Hallway, Lounge, Dining Room, Open Plan Living/Kitchen, Utility Room and Cloakroom with WC and on the first floor Hallway with Sitting Area, Master Bedroom with En Suite Shower Room with WC, Bedroom 2 with En Suite Shower Room with WC, Bedrooms 3 and 4 and Bathroom with WC. The property benefits from feature stairways on both levels, ample parking on monoblock drive, double garage, mature gardens and double glazing throughout.
Viewing highly recommended.
Additional Information
Tenure:
Freehold
Mortgage calculator
Calculate your stamp duty
Results
Stamp Duty To Pay:
Effective Rate:
| Tax Band | % | Taxable Sum | Tax |
|---|
140 William Fitzgerald Way, Dundee, DD4 9FB
Struggling to find a property? Get in touch and we'll help you find your ideal property.