Standout Features
- Mid-Terraced House
- Open Plan Living Space
- Two Bedrooms
- On Street Parking
- Walking Distance to High Street
- Enclosed Courtyard Garden
- Council Tax Band: C
- Vacant Possession
- No Onward Chain
- Tenure: Freehold
Property Description
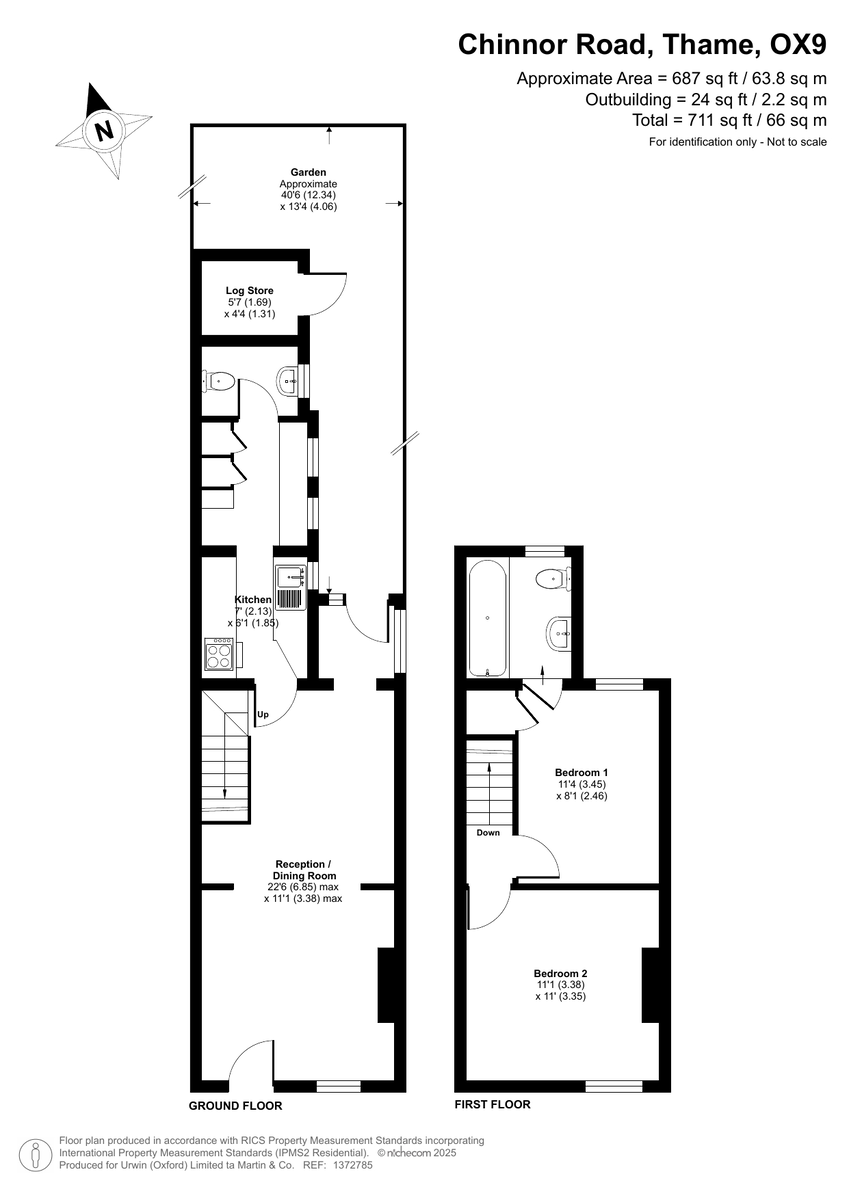
Martin & Co are delighted to present this Two Bedroom Mid-Terraced House on Chinnor Road, Thame, offered with Vacant Possession and No Onward Chain.
The property features a bright open-plan living area, a galley-style kitchen leading to a utility area and downstairs WC. Upstairs, there are two bedrooms and a family bathroom, conveniently accessed through the principal bedroom.
Externally, the home benefits from on-road parking and an enclosed rear garden, ideal for outdoor enjoyment.
In need of modernisation, this property presents an excellent opportunity to add value in a highly sought-after location, just a short walk from Thame High Street with its array of shops, cafés, and local amenities.
The property features a bright open-plan living area, a galley-style kitchen leading to a utility area and downstairs WC. Upstairs, there are two bedrooms and a family bathroom, conveniently accessed through the principal bedroom.
Externally, the home benefits from on-road parking and an enclosed rear garden, ideal for outdoor enjoyment.
In need of modernisation, this property presents an excellent opportunity to add value in a highly sought-after location, just a short walk from Thame High Street with its array of shops, cafés, and local amenities.
Additional Information
Tenure:
Freehold
Council Tax Band:
C
Mortgage calculator
Calculate your stamp duty
Results
Stamp Duty To Pay:
Effective Rate:
| Tax Band | % | Taxable Sum | Tax |
|---|
Chinnor Road, Thame
Struggling to find a property? Get in touch and we'll help you find your ideal property.