Kettleworks, Pope Street, Jewellery Quarter, B1

£190,000 | Available

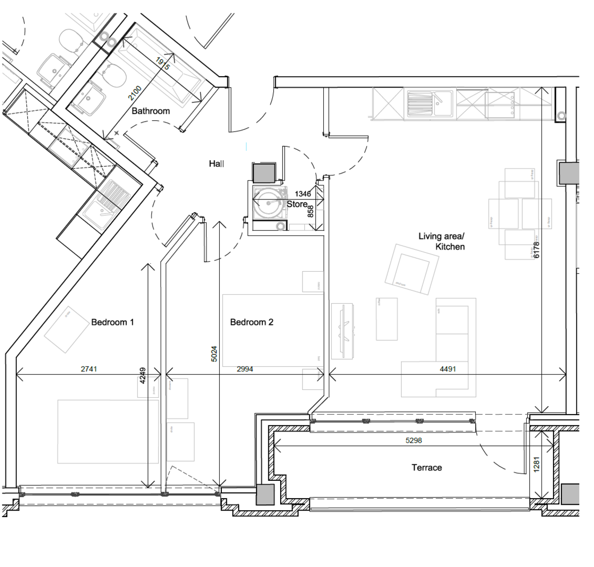
2 bedroom Flat For Sale

or call 0121 270 2633
Standout Features
Property Description
A great opportunity for an investor to purchase a two bedroom apartment with terrace in the Kettleworks development which was released for sale off plan by the developer Seven Capital in 2015 and sold out within 2 months! The build completion of the apartment was in January 2019. The property is tenanted until January 2027 and is achieving £1,050pcm.

The Kettleworks is a major residential development in Birmingham's vibrant Jewellery Quarter, set within the new St George's Urban Village scheme. The Jewellery Quarter is a designated conservation area and proposed World Heritage Site and is already a prestigious and highly desired part of Birmingham. It is experiencing further development as some of the old factories are converted into apartments, restaurants and shops. It is only a short distance to all that Birmingham City Centre has to offer. The Kettleworks is located in the heart of this historic district.

Each apartment has been crafted in both layout and specifications. The emphasis is on the luxury design and the clean contemporary lines without compromising attention to detail.

Apartment specifications provide superb, generously proportioned open plan designs including:

* Integrated kitchen appliances to include oven, hob, extractor, dishwasher, washer/dryer and fridge/freezer.
* Wood effect flooring to bedroom, living area, kitchen and hallway. Luxury vinyl to bathroom.
* Full height wall tiling around bath/shower.
* Ladder style polished chrome heated towel rail.
* Brushed stainless steel and chrome ironmongery throughout.
* Hardwood veneered, solid core entrance door with spy hole.
* Hardwood veneered internal doors throughout.
* Audio intercom system.
* Low energy LED down lighters to kitchen area.

LEASEHOLD INFORMATION:
Service charge - £1,779 pa
Ground rent - £350 pa
Lease length - 150 years from 1st January 2018

Lease, ground rent and service charge details have been provided by the seller and their accuracy cannot be guaranteed. Should you proceed with the purchase of this property, these details must be verified by your Solicitor.

Additional Information
Tenure:
Leasehold
Ground Rent:
£300 per year
Service Charge:
£1,779 per year
Council Tax Band:
D

Mortgage calculator

Calculate your stamp duty
£
Results
Stamp Duty To Pay:
Effective Rate:
Tax Band % Taxable Sum Tax

Kettleworks, Pope Street, Jewellery Quarter, B1

Struggling to find a property? Get in touch and we'll help you find your ideal property.