Standout Features
- Bright Reception room
- Double bedroom with with direct access to Patio
- En-suite shower room and separate w/c
- Modern kitchen
- Recently refurbished
- Kensington and Chelsea parking permit
- Wooden flooring throughout
- Short walk to River Thames & amenities of Kings Road
- Tenure - Share Of Freehold
- Sold with no onward chain
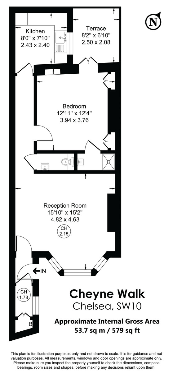
Property Description
A superbly presented Victorian Apartment located on the prestigious Cheyne Walk in Chelsea.
Measuring close to 600 square feet and entered through your own front door, the accommodation comprises spacious Reception room with bay window, separate kitchen, double bedroom with access to patio, en-suite shower room and separate w/c. The property has been refurbished by current owners and would suit first time buyer or those looking for Pied a Terre or a buy to let.
Cheyne Walk is an iconic road situated along with the river in Chelsea and is in close proximity to the shops and amenities of the Kings Road and Fulham Road.
Share of Freehold (c. 993 years unexpired).
Sold with no onward chain.
Measuring close to 600 square feet and entered through your own front door, the accommodation comprises spacious Reception room with bay window, separate kitchen, double bedroom with access to patio, en-suite shower room and separate w/c. The property has been refurbished by current owners and would suit first time buyer or those looking for Pied a Terre or a buy to let.
Cheyne Walk is an iconic road situated along with the river in Chelsea and is in close proximity to the shops and amenities of the Kings Road and Fulham Road.
Share of Freehold (c. 993 years unexpired).
Sold with no onward chain.
Additional Information
Tenure:
Share of Freehold
Service Charge:
£2,500 per year
Council Tax Band:
E
Mortgage calculator
Calculate your stamp duty
Results
Stamp Duty To Pay:
Effective Rate:
| Tax Band | % | Taxable Sum | Tax |
|---|
Cheyne Walk, Chelsea
Struggling to find a property? Get in touch and we'll help you find your ideal property.