Let Available Date
Available: Now
Standout Features
- DETACHED
- 4 BEDROOMS
- 2 RECEPTION ROOMS
- EN SUITE & FAMILY BATHROOM
- GARDEN
- UTILITY ROOM WITH WASHING MACHINE
- KITTED KITCHEN BREAKFAST ROOM WITH APPLIANCES
- DOWNSTAIRS CLOAKROOM
- LARGE DETACHED GARAGE WITH PARKING FOR SEVERAL CARS
- PETS WILL BE CONSIDERED
Property Description
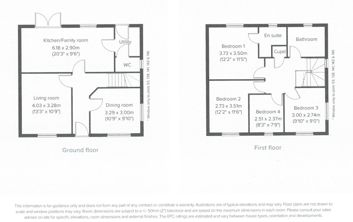
ENTRANCE HALL Stairs off and doors to:
LIVING ROOM 13' 2" x 10' 9" (4.03m x 3.28m)
DINING ROOM 10' 9" x 9' 10" (3.29m x 3.00m)
KITCHEN/FAMILY ROOM 20' 3" x 9' 6" (6.18m x 2.90m) Patio doors to garden. Well fitted kitchen area with base and wall units, oven and hob with extractor, dishwasher.
UTILITY ROOM Washing machine, base unit and walll hung gas fired boiler. Part glazed door to rear garden.
CLOAKROOM Low flushing suite and wash hand basin.
LANDING Doors to
BEDROOM 1 12' 2" x 11' 5" (3.73m x 3.50m) Built in cupboard. Doors to:
EN SUITE SHOWER ROOM Shower cubicle, low flushing suite, wash hand basin.
BEDROOM 2 8' 11" x 11' 6" (2.73m x 3.51m)
BEDROOM 3 9' 10" x 8' 11" (3.00m x 2.74m)
BEDROOM 4 8' 2" x 7' 9" (2.51m x 2.37m)
FAMILY BATHROOM Paneled bath with shower over, low flushing suite, wash hand basin.
GENERAL INFORMATION The property occupies a good size plot with front and side garden. Driveway with parking for several vehicles leading to the very large detached garage with an up and over door and pitched roof with eaves storage.
There is a side gate to the large rear garden.
The heating is provided by a Gas combi boiler, the windows and external doors are double glazed throughout
Saxmundham is a few miles away with mainline aTrain Station, lots of shopping opportunities, Waitrose & Tesco stores opposite one another.
The Suffolk Coast is a stones throw from Leiston @ Sizewell with Thorpeness and Aldeburgh a little further down the coast.
LIVING ROOM 13' 2" x 10' 9" (4.03m x 3.28m)
DINING ROOM 10' 9" x 9' 10" (3.29m x 3.00m)
KITCHEN/FAMILY ROOM 20' 3" x 9' 6" (6.18m x 2.90m) Patio doors to garden. Well fitted kitchen area with base and wall units, oven and hob with extractor, dishwasher.
UTILITY ROOM Washing machine, base unit and walll hung gas fired boiler. Part glazed door to rear garden.
CLOAKROOM Low flushing suite and wash hand basin.
LANDING Doors to
BEDROOM 1 12' 2" x 11' 5" (3.73m x 3.50m) Built in cupboard. Doors to:
EN SUITE SHOWER ROOM Shower cubicle, low flushing suite, wash hand basin.
BEDROOM 2 8' 11" x 11' 6" (2.73m x 3.51m)
BEDROOM 3 9' 10" x 8' 11" (3.00m x 2.74m)
BEDROOM 4 8' 2" x 7' 9" (2.51m x 2.37m)
FAMILY BATHROOM Paneled bath with shower over, low flushing suite, wash hand basin.
GENERAL INFORMATION The property occupies a good size plot with front and side garden. Driveway with parking for several vehicles leading to the very large detached garage with an up and over door and pitched roof with eaves storage.
There is a side gate to the large rear garden.
The heating is provided by a Gas combi boiler, the windows and external doors are double glazed throughout
Saxmundham is a few miles away with mainline aTrain Station, lots of shopping opportunities, Waitrose & Tesco stores opposite one another.
The Suffolk Coast is a stones throw from Leiston @ Sizewell with Thorpeness and Aldeburgh a little further down the coast.
Additional Information
Furnish Type:
Unfurnished
Council Tax Band:
D
Security Deposit:
£2,100
Hodgson Avenue, Leiston
Struggling to find a property? Get in touch and we'll help you find your ideal property.