Let Available Date
Available: 11/03/2027
Standout Features
- Sought After Town Centre Location
- Open Plan Sitting Room- Kitchen Diner
- EPC Rating C
- Private Secure Parking
- En Suite Shower Room
- 30 Minute Drive to RAF Lakenheath/Mildenhall
- Secure Gates Parking
Property Description
SECURE GATED ENTRY SYSTEM: Entrance to the Apartment and Parking area
STAIRS TO THE APARTMENT:
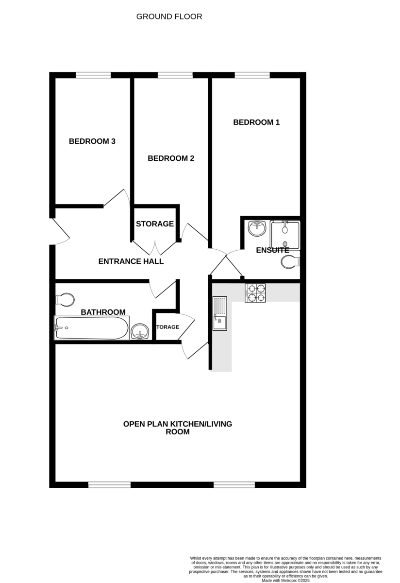
ENTRANCE HALL: With Large built in closet and airing cupboard
OPEN PLAN KITCHEN/LIVING 24' 06" x 19' 02(max)" (7.47m x 5.84m) Kitchen area with ample Wall and Base units, finished in light maple effect. Built in Fridge/Freezer, Electric Fan Oven and Gas Hob. Wood laminate flooring, Open Plan to:
Spacious area, with windows to the front of the apartment, carpeted, telephone point, sockets for FM radio, terestial TV and satellite TV
BEDROOM 1: 14' 03" x 8' 09" (4.34m x 2.67m) Double size room. carpeted,TV point, window to the rear
EN-SUITE SHOWER ROOM: shower cubicle, WC, wash hand basin
BEDROOM 2: 13' 01" x 7' 04" (3.99m x 2.24m) Double room, carpeted, TV point window to the rear
BEDROOM 3: 12' 04" x 7' 06" (3.76m x 2.29m) Single room, carpeted, window to the rear
BATHROOM: Bath tub with hand held shower attachment, wash basin and WC
WOODEN VENETIAN BLINDS TO ALL WINDOWS
OUTSIDE Allocated private parking for one vehicle - within enclosed gated parking area
The Apartment right in the heart of the town, walking distance to all restaurants, bars, theatre, movie theatres and Abbey Gardens - 30 Minutes drive too RAF LAKENHEATH/MILDENHALL
STAIRS TO THE APARTMENT:
ENTRANCE HALL: With Large built in closet and airing cupboard
OPEN PLAN KITCHEN/LIVING 24' 06" x 19' 02(max)" (7.47m x 5.84m) Kitchen area with ample Wall and Base units, finished in light maple effect. Built in Fridge/Freezer, Electric Fan Oven and Gas Hob. Wood laminate flooring, Open Plan to:
Spacious area, with windows to the front of the apartment, carpeted, telephone point, sockets for FM radio, terestial TV and satellite TV
BEDROOM 1: 14' 03" x 8' 09" (4.34m x 2.67m) Double size room. carpeted,TV point, window to the rear
EN-SUITE SHOWER ROOM: shower cubicle, WC, wash hand basin
BEDROOM 2: 13' 01" x 7' 04" (3.99m x 2.24m) Double room, carpeted, TV point window to the rear
BEDROOM 3: 12' 04" x 7' 06" (3.76m x 2.29m) Single room, carpeted, window to the rear
BATHROOM: Bath tub with hand held shower attachment, wash basin and WC
WOODEN VENETIAN BLINDS TO ALL WINDOWS
OUTSIDE Allocated private parking for one vehicle - within enclosed gated parking area
The Apartment right in the heart of the town, walking distance to all restaurants, bars, theatre, movie theatres and Abbey Gardens - 30 Minutes drive too RAF LAKENHEATH/MILDENHALL
Additional Information
Furnish Type:
Unfurnished
Council Tax Band:
C
Security Deposit:
£1,500
Kings Mews, Kings Road
Struggling to find a property? Get in touch and we'll help you find your ideal property.