Let Available Date
Available: 02/03/2026
Standout Features
- Two Bed Cluster House
- Popular & Convenient Location
- Well Presented Accommodation
- Three Piece Shower Room
- Two Parking Spaces
- Good Sized Garden
- Close To A14 & Science Park
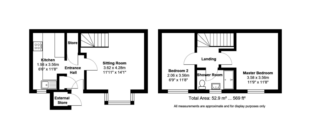
Property Description
A well presented and well proportioned two bed cluster house occupying a popular & convenient location in Milton giving quick & easy access to local amenities, Cambridge city centre, the A14 and the Science Park.
Comprising entrance hall with storage; well equipped galley kitchen; spacious reception room with bay window; two bedrooms with the master bedroom including built in wardrobes; and first floor three piece shower room.
Additional benefits of this excellent property include a spacious garden, two off street parking spaces, and good external storage.
Unfurnished.
Comprising entrance hall with storage; well equipped galley kitchen; spacious reception room with bay window; two bedrooms with the master bedroom including built in wardrobes; and first floor three piece shower room.
Additional benefits of this excellent property include a spacious garden, two off street parking spaces, and good external storage.
Unfurnished.
Additional Information
Furnish Type:
Unfurnished
Council Tax Band:
C
Security Deposit:
£1,375
James Carlton Close
Struggling to find a property? Get in touch and we'll help you find your ideal property.