Let Available Date
Available: 23/01/2026
Standout Features
- Two double bedrooms
- Allocated parking for two cars
- Well presented throughout
- Master with en-suite
- Well regarded residential location
- Generous living area
- Quiet location
- Excellent schools nearby
- Modern & stylish
- Council tax band B
Property Description
A fantastic two bedroom modern home, situated in the highly sought-after parish of Leighton. Offering two double bedrooms, generous living space, master with ensuite, allocated parking and is within walking distance to schools & amenities. Perfectly suited to a professional couple or small family. The accommodation briefly comprises:
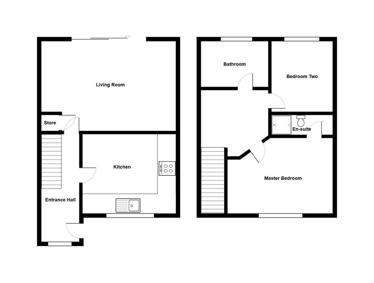
ENTRANCE HALL Initially greeted with light wood flooring and neutrally decorated walls. Space for shoes/coats. Access to the stairs and kitchen.
KITCHEN Well positioned kitchen with beech units and contrasting black worktops. Window to front aspect. Appliances include an oven, gas hob, and cooker hood.
LIVING ROOM Generously sized living area with space for furniture and a table & chairs. The wood flooring is carried through, along with the neutral decor. Access to the downstairs store.
STORE Present under the stairs.
STAIRS Carpeted staircase rising to the first floor.
STORE Present on the landing, offering another suitable storage space.
BATHROOM Modern bathroom containing a bathtub, W/C and wash basin. Tiled flooring and fully tiled walls.
BEDROOM TWO Small double bedroom with carpeted flooring and neutrally decorated walls.
MASTER BEDROOM Generous double bedroom with carpeted flooring and neutrally decorated walls. Access to the en-suite.
EN-SUITE Well positioned shower room containing a shower cubicle, W/C and wash basin.
GARDEN Lovely garden with some lawn and patio area. Gate access to the parking.
PARKING Allocated parking for two cars.
Should you wish to rent this property with an animal the landlord may consider this with an increased monthly rental payment for the duration of the tenancy. This will be dependent upon any restrictions from superior leases', the landlord's specific requirements and suitability of the pet for the property.
Accuracy: Whilst we endeavour to make our sales/lettings details accurate and reliable, if there is any point which is of particular importance to you, please contact the office and we will be pleased to check the information. Do so, particularly if contemplating travelling some distance to view the property. Sonic / laser Tape: All measurements have been taken using a sonic / laser tape measure and therefore, may be subject to a small margin of error. Services Not tested: The mention of any appliances and/or services within these Sales/Lettings Particulars does not imply they are in full and efficient working order. All Measurements: All Measurements are Approximate.
ENTRANCE HALL Initially greeted with light wood flooring and neutrally decorated walls. Space for shoes/coats. Access to the stairs and kitchen.
KITCHEN Well positioned kitchen with beech units and contrasting black worktops. Window to front aspect. Appliances include an oven, gas hob, and cooker hood.
LIVING ROOM Generously sized living area with space for furniture and a table & chairs. The wood flooring is carried through, along with the neutral decor. Access to the downstairs store.
STORE Present under the stairs.
STAIRS Carpeted staircase rising to the first floor.
STORE Present on the landing, offering another suitable storage space.
BATHROOM Modern bathroom containing a bathtub, W/C and wash basin. Tiled flooring and fully tiled walls.
BEDROOM TWO Small double bedroom with carpeted flooring and neutrally decorated walls.
MASTER BEDROOM Generous double bedroom with carpeted flooring and neutrally decorated walls. Access to the en-suite.
EN-SUITE Well positioned shower room containing a shower cubicle, W/C and wash basin.
GARDEN Lovely garden with some lawn and patio area. Gate access to the parking.
PARKING Allocated parking for two cars.
Should you wish to rent this property with an animal the landlord may consider this with an increased monthly rental payment for the duration of the tenancy. This will be dependent upon any restrictions from superior leases', the landlord's specific requirements and suitability of the pet for the property.
Accuracy: Whilst we endeavour to make our sales/lettings details accurate and reliable, if there is any point which is of particular importance to you, please contact the office and we will be pleased to check the information. Do so, particularly if contemplating travelling some distance to view the property. Sonic / laser Tape: All measurements have been taken using a sonic / laser tape measure and therefore, may be subject to a small margin of error. Services Not tested: The mention of any appliances and/or services within these Sales/Lettings Particulars does not imply they are in full and efficient working order. All Measurements: All Measurements are Approximate.
Additional Information
Furnish Type:
Unfurnished
Council Tax Band:
B
Security Deposit:
£951
Tomkinson Close, Leighton
Struggling to find a property? Get in touch and we'll help you find your ideal property.