Let Available Date
Available: Now
Standout Features
- 2 spacious bedrooms
- Modern, trendy interior
- En suite & family bathroom
- 1 parking space included
- Gated community access
- Sought after location
- 1 min to Rochester High St
- Available Dec 2025/Jan 2026
- Flat with 831 sq ft
- Viewing highly recommended
Property Description
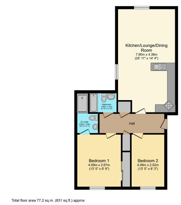
Welcome to this modern and stylish two-bedroom apartment located in the highly sought-after Davy Court. Spanning an impressive 831 square feet, this flat offers a perfect blend of contemporary living and comfort.
Upon entering, you will be greeted by a large entrance area and a spacious open plan living environment that provides an inviting atmosphere for relaxation and entertaining. The apartment features two well-appointed bedrooms, including a master suite with an en suite bathroom and a double mirrored wardrobe, ensuring privacy and convenience. A separate family bathroom adds to the practicality of the layout, making it ideal for both families and professionals alike.
The interior of the property is designed with a trendy aesthetic, showcasing modern finishes and thoughtful details throughout. Residents will also benefit from a designated parking space within a secure gated community, providing peace of mind and ease of access.
One of the standout features of this apartment is its prime location. Just a minute's walk from the historic Rochester High Street, you will find a delightful array of shops, cafes, and cultural attractions right at your doorstep. This vibrant area is perfect for those who appreciate a lively community atmosphere while still enjoying the comforts of home.
This exceptional property will be available for occupancy from late December 2025 to early January 2026, making it an excellent opportunity for those looking to secure a modern living space in a desirable location. Do not miss the chance to make this stunning apartment your new home.
Upon entering, you will be greeted by a large entrance area and a spacious open plan living environment that provides an inviting atmosphere for relaxation and entertaining. The apartment features two well-appointed bedrooms, including a master suite with an en suite bathroom and a double mirrored wardrobe, ensuring privacy and convenience. A separate family bathroom adds to the practicality of the layout, making it ideal for both families and professionals alike.
The interior of the property is designed with a trendy aesthetic, showcasing modern finishes and thoughtful details throughout. Residents will also benefit from a designated parking space within a secure gated community, providing peace of mind and ease of access.
One of the standout features of this apartment is its prime location. Just a minute's walk from the historic Rochester High Street, you will find a delightful array of shops, cafes, and cultural attractions right at your doorstep. This vibrant area is perfect for those who appreciate a lively community atmosphere while still enjoying the comforts of home.
This exceptional property will be available for occupancy from late December 2025 to early January 2026, making it an excellent opportunity for those looking to secure a modern living space in a desirable location. Do not miss the chance to make this stunning apartment your new home.
Additional Information
Furnish Type:
Unfurnished
Council Tax Band:
D
Security Deposit:
£1,788
Utilities
Electricity:
Mains Supply
Sewerage:
Mains Supply
Heating:
Gas Central
Davy Court
Struggling to find a property? Get in touch and we'll help you find your ideal property.