Let Available Date
Available: 08/04/2027
Standout Features
- 1 Double bedroom
- Open plan lounge/kitchen
- Garage
- Lockable store
- 10 minute drive to RAF Lakenheath/Mildenhall
- EPC Rating: C
- Council Tax Band: A
Property Description
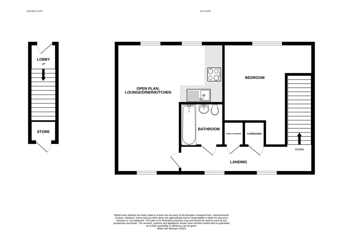
ACCOMMODATION COMPRISES: Personal front door opening to small entrance lobby with radiator and stairs rising.
LANDING AREA: 20' 00" x 3' 05" (6.1m x 1.04m) UPVC double glazed windows. Radiator. Integral storage cupboard and further airing cupboard housing water cylinder.
LOUNGE/DINER: 17' 10" x 10' 04" (5.44m x 3.15m) UPVC double glazed window to front and rear aspect. Radiator. Open plan to:
KITCHEN: 8' 04" x 7' 07" (2.54m x 2.31m) Range of kitchen units with worktop, tiled splashback and inset single bowl stainless steel sink with mixer tap. Single oven, electric hob and extractor above. Integrated fridge/freezer. Space/plumbing for washing machine. Vinyl flooring. UPVC double glazed window.
BEDROOM: 12' 08" x 11' 07" (3.86m x 3.53m) minimum 9' 04" (2.84m). UPVC double glazed window. Radiator. Alcove with freestanding wardrobe.
BATHROOM: 6' 11" x 5' 06" (2.11m x 1.68m) Bath with mixer tap/shower attachment, low level WC and wash basin with pedestal. Vinyl flooring. Radiator.
OUTSIDE: Integral lockable store. GARAGE en bloc with up and over door. Small gravel courtyard area.
LANDING AREA: 20' 00" x 3' 05" (6.1m x 1.04m) UPVC double glazed windows. Radiator. Integral storage cupboard and further airing cupboard housing water cylinder.
LOUNGE/DINER: 17' 10" x 10' 04" (5.44m x 3.15m) UPVC double glazed window to front and rear aspect. Radiator. Open plan to:
KITCHEN: 8' 04" x 7' 07" (2.54m x 2.31m) Range of kitchen units with worktop, tiled splashback and inset single bowl stainless steel sink with mixer tap. Single oven, electric hob and extractor above. Integrated fridge/freezer. Space/plumbing for washing machine. Vinyl flooring. UPVC double glazed window.
BEDROOM: 12' 08" x 11' 07" (3.86m x 3.53m) minimum 9' 04" (2.84m). UPVC double glazed window. Radiator. Alcove with freestanding wardrobe.
BATHROOM: 6' 11" x 5' 06" (2.11m x 1.68m) Bath with mixer tap/shower attachment, low level WC and wash basin with pedestal. Vinyl flooring. Radiator.
OUTSIDE: Integral lockable store. GARAGE en bloc with up and over door. Small gravel courtyard area.
Additional Information
Furnish Type:
Unfurnished
Council Tax Band:
A
Security Deposit:
£1,265
Hundred Acre Way, Red Lodge
Struggling to find a property? Get in touch and we'll help you find your ideal property.