Let Available Date
Available: 13/02/2026
Standout Features
- Local amenities nearby
- Excellent transport links
- Quiet area of living
- LARN: 1905074
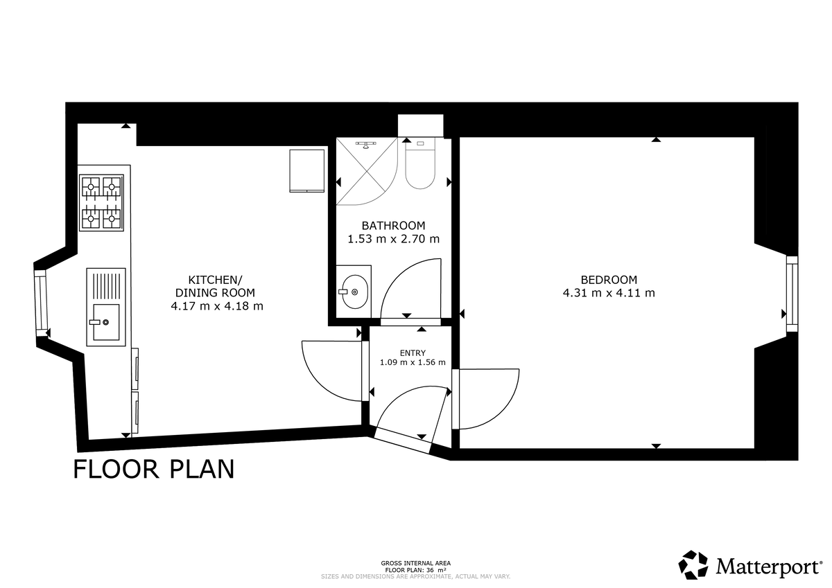
Property Description
KITCHEN The kitchen for this property is located immediately left as you enter through the front door and provides a good amount of floor space combined with a bright interior. The room doubles up as a seating are with a singular sofa and creates a cosy environment to both prepare and enjoy your meals. The room also contains an oven cooker, microwave, sink area and washing machine.
BEDROOM The bedroom for this property is located immediately right as you enter through the front door and provides a generous amount of room space combined with sleek wood panel flooring. The room provides good lighting from a singular street facing window and the room itself contains two large wardrobes, mirror, bed frame and bedside table.
BATHROOM The bathroom for this property is located immediately ahead as you enter through the front door and provides and clean and comfortable washing area with a stylish grey shaded tile flooring scheme. The room contains a sink, large rectangular mirror, toilet, two storage shelves and an enclosed shower.
BEDROOM The bedroom for this property is located immediately right as you enter through the front door and provides a generous amount of room space combined with sleek wood panel flooring. The room provides good lighting from a singular street facing window and the room itself contains two large wardrobes, mirror, bed frame and bedside table.
BATHROOM The bathroom for this property is located immediately ahead as you enter through the front door and provides and clean and comfortable washing area with a stylish grey shaded tile flooring scheme. The room contains a sink, large rectangular mirror, toilet, two storage shelves and an enclosed shower.
Additional Information
Furnish Type:
Part Furnished
Council Tax Band:
A
Security Deposit:
£495
Baker Street, Aberdeen
Struggling to find a property? Get in touch and we'll help you find your ideal property.