Let Available Date
Available: 03/01/2026
Standout Features
- Modern Apartment
- Kitchen with a Dishwasher
- Luxury Bathroom with Quality Fittings
- Double Bedroom
- Parking for 1 car
Property Description
A modern, beautifully crafted one bedroom boutique apartment come with high-quality appliances and fine detailing. There is allocated parking for 1 car.
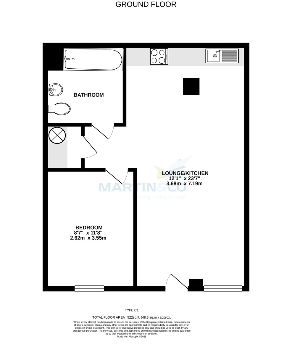
LOUNGE/DINING ROOM 23' 7" x 12' 0" (7.19m x 3.68m) Window, oak effect laminate flooring, electric radiator and utility cupboard with washer/dryer.
KITCHEN AREA A range of eye and base level storage units with rolled edge work surfaces with undercabinet lighting, integrated oven, four ring ceramic hob with extractor hood over, fridge/freezer and oak effect laminate flooring.
BEDROOM 11' 7" x 8' 7" (3.55m x 2.62m) Window with Combination blinds partial or full black-out, carpet and electric radiator.
BATHROOM Bath with shower over, low-level WC with soft close toilet seat, wash hand basin, thermostatic shower LED mirror with shaver socket and demister function, towel radiator and tiled floor.
OUTSIDE Communal grounds, bicycle storage, parcel collection and delivery locker and allocated parking for one car.
APPLICATIONS A holding deposit equivalent to 1 weeks rent will be required to reserve the property while referencing checks are being carried out. With the tenants' consent this holding deposit will be refunded against the first month's rent. The holding deposit can be retained if the applicant provides false or misleading information, fails Right to Rent checks, withdraws from the property or fails to take reasonable steps to enter into the tenancy.
In accordance with the Tenant Fees Act applicants will be required to enter into the tenancy agreement no more than 15 days after paying the holding deposit. Failure to do so for any of the afore mentioned reasons may result in you losing your holding deposit. An extension to the deadline may be entered into if agreed in writing by all parties.
Right to Rent Checks
By law, Right to Rent checks must be carried and as such will be required to provide proof of ID and address in accordance with Home Office guidelines. More information can be found at:
https://assets.publishing.service.gov.uk/government/uploads/system/uploads/attachment_data/file/573057/6_1193_HO_NH_Right-to-Rent-Guidance.pdf
Reference Checks and Credit Worthiness
All applicants will be subject to a credit check carried out by a 3rd party to check for CCJs and IVAs Applicants will need to provide proof of an income of at least 2.5 x annual rent.
We will also carry out employment checks, affordability checks, previous landlord reference and proof of address history, usually up to 3 years.
Documentation that will be required
Passport, driving licence, utility bill dated in the last 3 months (for proof of address) and payslips
KEY FACTS FOR RENTERS Council Tax Band: B
Basingstoke and Deane
EPC Rating: D
Minimum Tenancy Term: 12 Months
UNFURNISHED
Allocated Parking for 1 Car
LOUNGE/DINING ROOM 23' 7" x 12' 0" (7.19m x 3.68m) Window, oak effect laminate flooring, electric radiator and utility cupboard with washer/dryer.
KITCHEN AREA A range of eye and base level storage units with rolled edge work surfaces with undercabinet lighting, integrated oven, four ring ceramic hob with extractor hood over, fridge/freezer and oak effect laminate flooring.
BEDROOM 11' 7" x 8' 7" (3.55m x 2.62m) Window with Combination blinds partial or full black-out, carpet and electric radiator.
BATHROOM Bath with shower over, low-level WC with soft close toilet seat, wash hand basin, thermostatic shower LED mirror with shaver socket and demister function, towel radiator and tiled floor.
OUTSIDE Communal grounds, bicycle storage, parcel collection and delivery locker and allocated parking for one car.
APPLICATIONS A holding deposit equivalent to 1 weeks rent will be required to reserve the property while referencing checks are being carried out. With the tenants' consent this holding deposit will be refunded against the first month's rent. The holding deposit can be retained if the applicant provides false or misleading information, fails Right to Rent checks, withdraws from the property or fails to take reasonable steps to enter into the tenancy.
In accordance with the Tenant Fees Act applicants will be required to enter into the tenancy agreement no more than 15 days after paying the holding deposit. Failure to do so for any of the afore mentioned reasons may result in you losing your holding deposit. An extension to the deadline may be entered into if agreed in writing by all parties.
Right to Rent Checks
By law, Right to Rent checks must be carried and as such will be required to provide proof of ID and address in accordance with Home Office guidelines. More information can be found at:
https://assets.publishing.service.gov.uk/government/uploads/system/uploads/attachment_data/file/573057/6_1193_HO_NH_Right-to-Rent-Guidance.pdf
Reference Checks and Credit Worthiness
All applicants will be subject to a credit check carried out by a 3rd party to check for CCJs and IVAs Applicants will need to provide proof of an income of at least 2.5 x annual rent.
We will also carry out employment checks, affordability checks, previous landlord reference and proof of address history, usually up to 3 years.
Documentation that will be required
Passport, driving licence, utility bill dated in the last 3 months (for proof of address) and payslips
KEY FACTS FOR RENTERS Council Tax Band: B
Basingstoke and Deane
EPC Rating: D
Minimum Tenancy Term: 12 Months
UNFURNISHED
Allocated Parking for 1 Car
Additional Information
Furnish Type:
Unfurnished
Council Tax Band:
B
Security Deposit:
£1,200
Ashwood Park, Ashwood Way
Struggling to find a property? Get in touch and we'll help you find your ideal property.